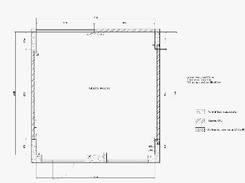
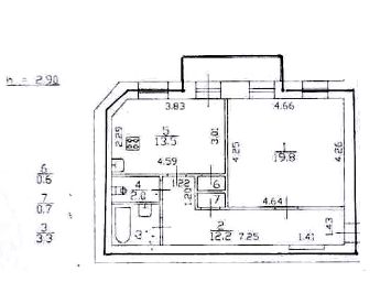
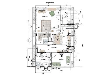
примеры работ

ДО - ПОСЛЕ

Вы удивитесь, сколько простора появится в помещении с нашей перепланировкой. Оптимизируем эргономику для вашего комфорта.

Даже в новых квартирах/офисах и в старом фонде мы находим более разумное зонирование, Наши планы вы сможете воплотить полностью или взять за основу.

Делали проекты в РФ, США, ОАЭ, на Кипре.

Преобразите пространство без усилий и лишних трат. И это улучшение вы будете ощущать каждый день своей жизни.

отзывы

услуги. ЦЕНЫ

Превращаем метры в идеальную среду для жизни или работы. Получите бесплатно полную профессиональную таблицу "Все необходимые замеры для проектирования интерьера и чертежей". Инструкция, как сделать замеры, - здесь!
Экспресс-перепланировка
2 планировки + 3Д

29 000 р
до 60 м2

  • 3 дня
  • 2 варианта с размерными планами, детальной расстановкой зон, необходимой мебели, кухонного оборудования, сантехники, света + 3Д-проект
  • не входит: визуализация, рабочие чертежи, согласования
Заказать
Экспресс-перепланировка
2 планировки+ 3Д

48 000 руб
60-99 м2

  • 4 дня
  • 2 варианта с размерными планами, детальной точной расстановкой зон, необходимой мебели, кухонного оборудования, сантехники, света + 3Д-проект
  • не входит: визуализация, рабочие чертежи, согласования
Заказать
Авторский проект
2 плана + 3Д + визуализация + чертежи

3 900
руб/м2

  • 1 неделя = 50 м2
  • 2 полных дизайн-проекта, рабочие чертежи, размерные планы с детальной точной расстановкой мебели, кухонного оборудования, сантехники, электрики + 3Д-проект
  • не входит: согласования с органами, авторский надзор и комплектация

О нас

  • С 2011 года успешно занимаемся перепланировками и дизайном квартир, домов и офисов.
  • Реализованные проекты: 35-560 м2 в РФ, США, ОАЭ, на Кипре.
  • С нуля до полной готовности.
  • Вовремя, точно, детально и выполнимо для воплощения.
  • С особым вниманием к эффективности дизайна и красоте.
  • Вы экономите время: без выездов и личных встреч.
  • Максимальное удобство: все удалённо из любой точки мира.
  • Получите профессиональную перепланировку, не выходя из дома или офиса, где бы вы ни находились.
Подписывайтесь на нас в ТГ - там лайфхаки, полезные советы, красивый дизайн интерьеров, примеры планировок и многое другое:

стили интерьера

НОВАЯ ПЛАНИРОВКА

  1. ответьте на вопросы и напишите пожелания
  2. сделайте замеры - инструкция здесь
  3. прикрепите план к анкете
  4. оплатите картой онлайн
  5. получите новую логику пространства, созданную под ваш образ жизни или работы (высылаем 2 лучших варианта в ПДФ на почту)
CRM-форма появится здесь
перепланировки, дизайн и многое другое

полезное про планировки и дизайн

Здесь мы делимся лайфхаками, идеями, кейсами, до и после - на темы: интерьеры, дизайн интерьера, перепланировка, дизайн квартир, перепланировка квартир, офисов, домов, зонирование, согласование, документы, 3Д-планы, перепланировки онлайн, дизайн интерьера удаленно, 3Д-визуализация, чертежи, архитектура и многое другое.

ИИ vs дизайнер: что лучше для перепланировки квартиры или дома?

Решили сделать перепланировку, но не знаете, выбрать дизайнера или довериться ИИ? В эпоху цифровых технологий возникает вопрос: можно ли заменить дизайнера искусственным интеллектом при разработке перепланировки квартиры онлайн или дизайна дома удалённо? Ответ не так прост. Рассказываем, чем отличаются решения на основе ИИ от работы профессионального дизайнера, и кто действительно справится лучше с задачей 3D-визуализации интерьера, чертежами перепланировки и созданием интерьера под ключ.

читать
Больше статей про планировки, дизайн, согласование и ремонт квартиры, офиса, дома
Самые полезные статьи на разные темы
Найти решения для себя
Cookie-файлы
Настройка cookie-файлов
Детальная информация о целях обработки данных и поставщиках, которые мы используем на наших сайтах
Аналитические Cookie-файлы Отключить все
Технические Cookie-файлы
Другие Cookie-файлы
Нажимая кнопку «Отправить» или аналогичную, я даю свое согласие на обработку моих персональных данных, в соответствии с Федеральным законом от 27.07.2006 года №152-ФЗ «О персональных данных», на условиях и для целей, определенных в Согласии на обработку персональных данных Подробнее о нашей политике в отношении Cookie.
Понятно Подробнее
Cookies